Bauherrschaft
Hotel Sternen Oerlikon AG
Auftrag
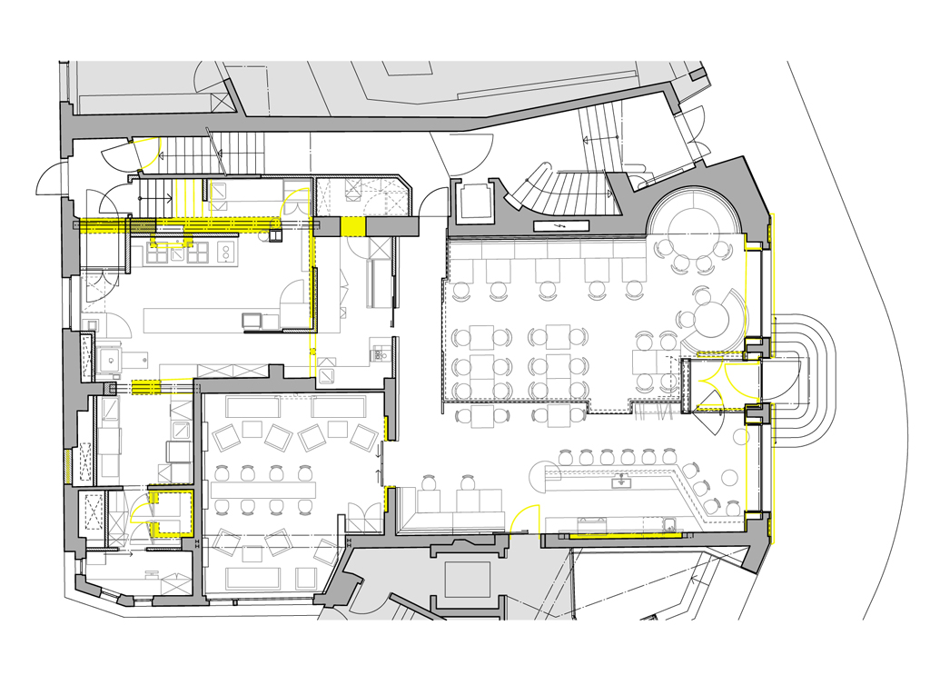
Umbau und Erneuerung des Restaurants mit Erneuerung des Gästeraumes, Einbau eines Bar mit Fumoir und Erneuerung der Gastroküche.
(Innenarchitektur Dösegger & Märck)
Ausführung
2013
Hotel Sternen Oerlikon AG
Umbau und Erneuerung des Restaurants mit Erneuerung des Gästeraumes, Einbau eines Bar mit Fumoir und Erneuerung der Gastroküche.
(Innenarchitektur Dösegger & Märck)
2013