_DSF3716rev_klein
_DSF3725rev_klein
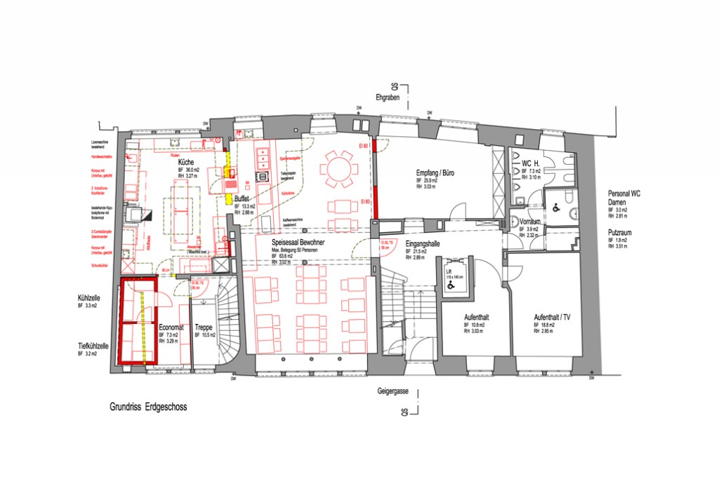
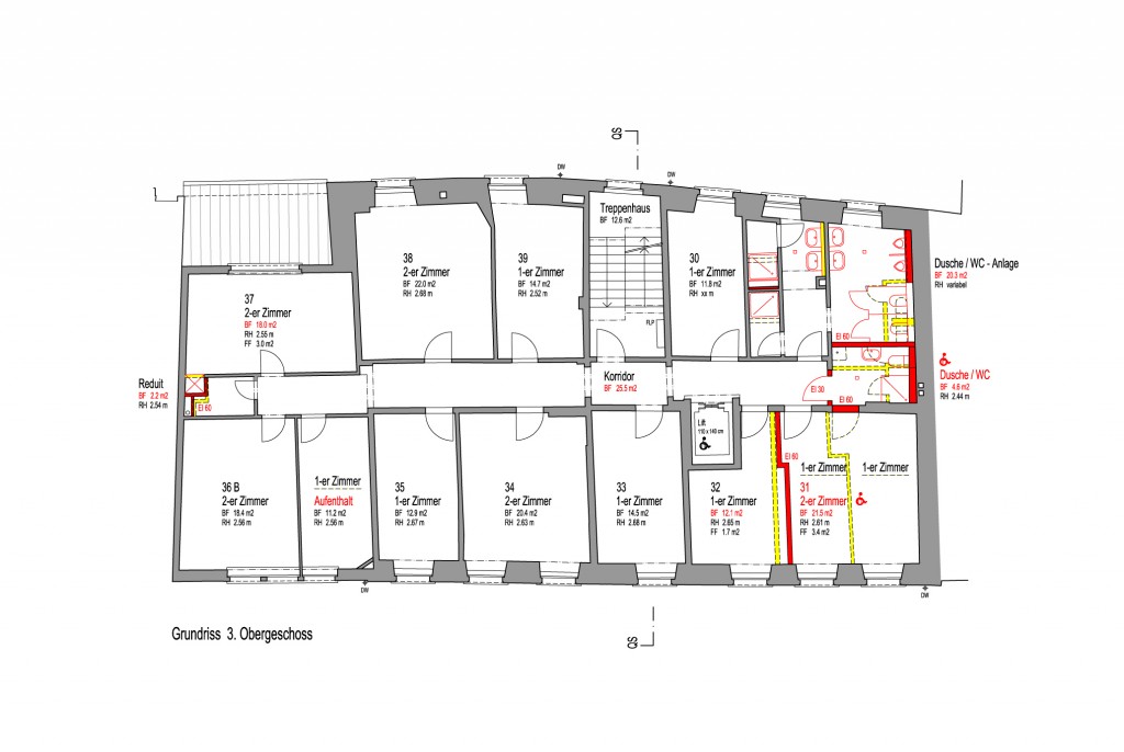
EliteCAD - K:EliteCADProjekte763.0076300_1712_2013_REVISION.
EliteCAD - K:EliteCADProjekte763.0076300_1712_2013_REVISION.
EliteCAD - K:EliteCADProjekte763.0076300_1712_2013_REVISION.

Herberge zur Heimat Zürich, Umbau Gastronomie und Nasszellen

Bauherrschaft

Stiftung evangelische Gesellschaft des Kantons Zürich

Auftrag

Umbau und Erneuerung der Gastroküche in der Herberge zur Heimat im Zürcher Niederdorf sowie zur Umgestaltung des Raustaurationsraumes.

Anpassungen von Zimmergrössen und Nasszellen zu Gunsten der IV-Konformität.

 

Ausführung

Sommer 2014 – Frühjahr 2015