2014-07-11 09.26.43
2014-07-11 09.29.03
Elite1

Hotel Ibis Messe-Zürich

Bauherrschaft

OERLIKOTEL AG c/o ACCOR Gestion Hôtelière S.A.

Auftrag

EG
Umbau der Reception und des Officebereiches sowie der Hotelbar.
Ausbau der Lobby und Umgestaltung des Restaurationsbereiches inklusive der Gartenterrasse (in Zusammenarbeit mit Naco Architectures (Paris)).
Neukonzeptionierung der Gastroküche.
Umbau Personalraum und Teeküche.
Anpassungen Brandschutz

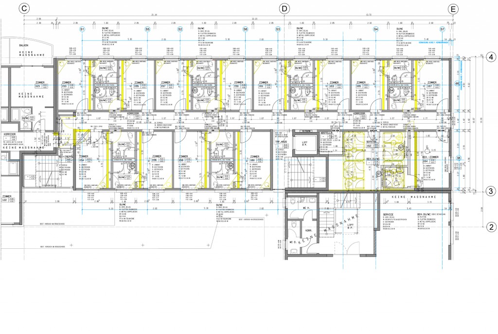
1. – 5. OG
Abbruch von 105 Zimmer und Etagenduschen
Einbau von neu 66 Zimmer mit eigener Nasszelle
Einbau von neu 6 behindertengerechte Zimmer inkl. Nasszellen
Einbau von neu 2 Zimmer im Hotel Ibis (anstelle Lager)
Anpassungen gemäss Hotelstandard Ibis

Unsere Leistungen:
Vorprojekt
Bauprojekt und Bewilligungsverfahren
Ausführungsplanung

Realisierung durch GU

 

Ausführung

2008 Planung
2009 Realisierung durch GU