P1060450_1rev
P1060485_1rev
EliteCAD - K:EliteCADProjekte773.0077300_1211_2012_Revision.

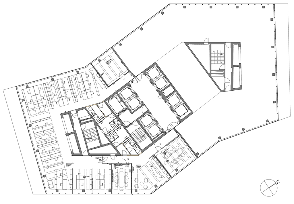
Mieterausbau Prime Tower, Zürich

Bauherrschaft

Privat

Auftrag

Mieterausbau in der 13. Etage des Prime Towers im Zürcher Industriequartier.

Baudaten

Raumprogramm:

Grossraumbüro mit 28 Arbeitsplätzen

2 Einzelbüros

2 Sitzungszimmer

Empfangsbereich mit Sekretariat und Teeküche

 

Ausführung: 2011