P1010448
P1000299
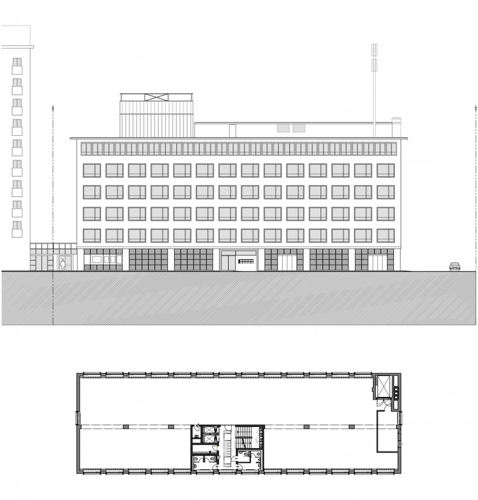
EliteCAD - K:Bauten aktiv728_00 GH Seebahnstrasse 89 Zürich7

GH Seebahnstrasse Zürich

Bauherrschaft

PSP Real Estate AG, Zürich

Auftrag

Umbau und Sanierung des Geschäftshauses an der Seebahnstrasse 89 in Zürich-Wiedikon (Postgebäude).

 

Rückbau der ehemaligen Räumlichkeiten der Swisscom.

Grundausbau für Vermietung mit variablem Raster (Innere Fassade)

Erneuerung der Nasszellen und der Treppenhäuser.

Neugestaltung des Eingangsbereiches. Sanierung der Fassade.

Baudaten

Raumprogramm:
2’800 m2 Bürofläche auf fünf Etagen mit WC-Anlagen,
Lager- und Nebenräume, Duschanlage
Tiefgarage mit 48 Einstellplätzen.

Ausführung: 2007 – 2008