Bauherrschaft
Politische Gemeinde Kilchberg
Auftrag
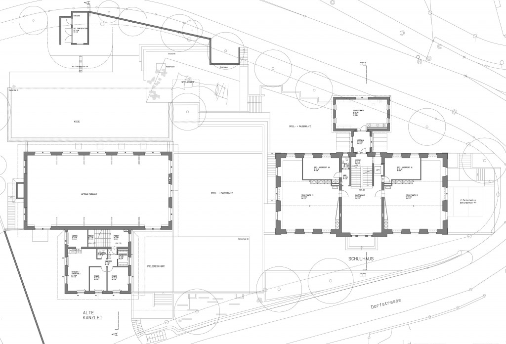
Erneuerung und Umbau des Schulhauses sowie des Turnhallengebäudes, Sanierung der historischen Bausubstanz und Rückbau in Originalzustand,
Erneuerung und Ergänzung der technischen Anlagen und der Ausstattung.
Aufwertung des Aussenraumes, Sanierung des Pausenplatzes, Erstellen eines neuen Spielplatzes.
Erneuerung und Ergänzung der technischen Anlagen und der Ausstattung.
Aufwertung des Aussenraumes, Sanierung des Pausenplatzes, Erstellen eines neuen Spielplatzes.
Baudaten
Raumprogramm:
Multifuntionaler Raum für die Einführungsklasse, Einbau Kinderhort und Mittagstisch, Mehrzweckraum für Theater und Schulfeste, Lehrerzimmer, Erweiterung der Turnhallennebenräumen, Einbau einer Aufzugsanlage.
Ausführung:
September 2007 – Dezember 2009