DSCN3679
DSCN3678
DSCN3686
EliteCAD - K:!ArchivBauten_inaktiv_x_Bautenx_710_00_Betriebse
EliteCAD - K:!ArchivBauten_inaktiv_x_Bautenx_710_00_Betriebse

Schreinerei Zürich

Bauherrschaft

Hans Mahler AG

Auftrag

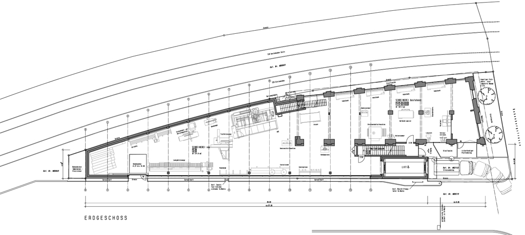
Sanierung des bestehenden Schreinereigebäudes aus dem Jahre 1898 sowie Erweiterung und dreigeschossigen Neubau unmittelbar an den Gleisanlagen der SZU.

 

Baudaten

Raumprogramm:

Untergeschoss: Haustechnik
Erdgeschoss: Einbau Schreinerei, sieben Werkstatträume
1. Obergeschoss: Lagerräume (vorbereitet für spätere Büroräumlich-keiten), Büros, Nasszellen, Empfang, Garderobe
2. Obergeschoss: Büroräumlichkeit frei einteilbar.

Ausführung:
2005 – 2006