Bauherrschaft
Evangelisch-reformierte Kirchgemeinde Zürich-Oberstrass
Auftrag
Umbau, Renovation, Umgestaltung und Fassadensanierung des Kirchgemeindehauses Oberstrass.
Raumprogramm:
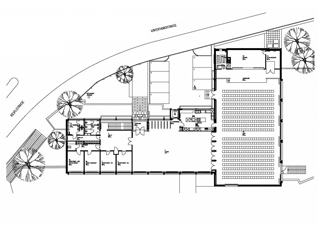
Erdgeschoss:
Foyer, Kirchgemeindesaal mit Bühne, Nebenräume, Küche, Halle mit WC-Anlagen, Sekretariat und Büros
Foyer, Kirchgemeindesaal mit Bühne, Nebenräume, Küche, Halle mit WC-Anlagen, Sekretariat und Büros
1. Untergeschoss:
3 Seminarräume, 1 Sitzungszimmer, Kindergarten
3 Seminarräume, 1 Sitzungszimmer, Kindergarten
2. Untergeschoss:
Spitex, Büro- und Lagerräume
Spitex, Büro- und Lagerräume
Ausführung
April bis Dezember 2005